Modulbüro Mega 12x7
80999€ zzgl. MwSt
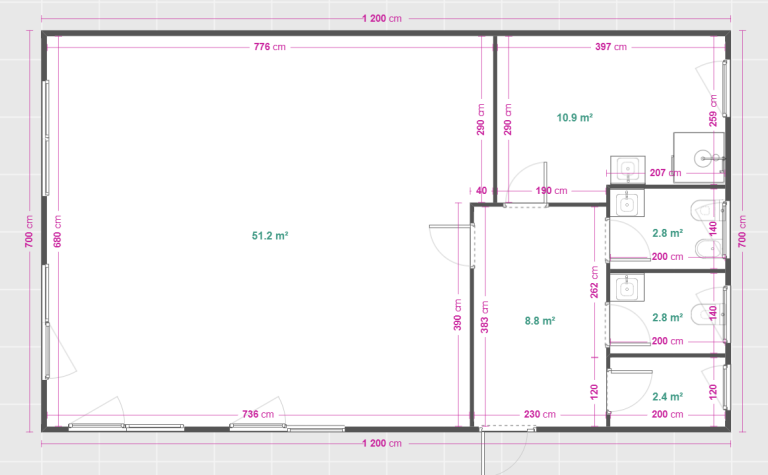
Technische Daten
- Außenmaße: 12,00 × 7,00 m
- Innenmaße: 11,80 × 6,80 m
- Firsthöhe: 2,70 – 3,00 m
- Innenhöhe: 2,30 – 2,60 m
- Innenräume: 3
Hinweis: Die Lieferung ist im Preis nicht inbegriffen. Je nach Bundesland liegen die Lieferkosten inklusive Kranentladung zwischen 4200 und 8000€ zzgl. MwSt.
Konstruktion & Isolierung
- Wandaufbau: Innen- und Außenverkleidung mit 100 mm PIR-Dämmung, Hochwertige Fassadenverkleidung aus Trapezblech in Holzoptik, U-Wert: 0,21 W/m²K
- Dachaufbau: Flachdach mit 100 mm PIR-Dachdämmung, Dachblech inkl. Traufblechen in Anthrazit, U-Wert: 0,21 W/m²K
- Bodenaufbau: 100 mm Bodendämmung, OSB-Platte, PVC-Bodenbelag (Farbe frei wählbar), U-Wert: 0,21 W/m²K
Innenausstattung
- Elektroinstallation (im Preis enthalten): 14× Spotlampen, 10× Doppelsteckdosen, 1× Verteilerkasten, 6× Lichtschalter
- Fenster & Türen: Hochwertige Aluminiumfenster und -türen, 2-fach verglast, Farbe: Anthrazit (RAL 7016), Hohe Stabilität und moderne Optik
- WC-Raum: WC, Waschbecken mit Unterschrank und LED-Spiegel, elektrischer Heizkörper, 40-Liter-Boiler
- Badezimmer: Duschkabine 90×80 cm, Waschbecken mit Unterschrank und LED-Spiegel, elektrischer Heizkörper, 40-Liter-Boiler

