Modulhaus Brunn 6x6
39999€ zzgl. MwSt
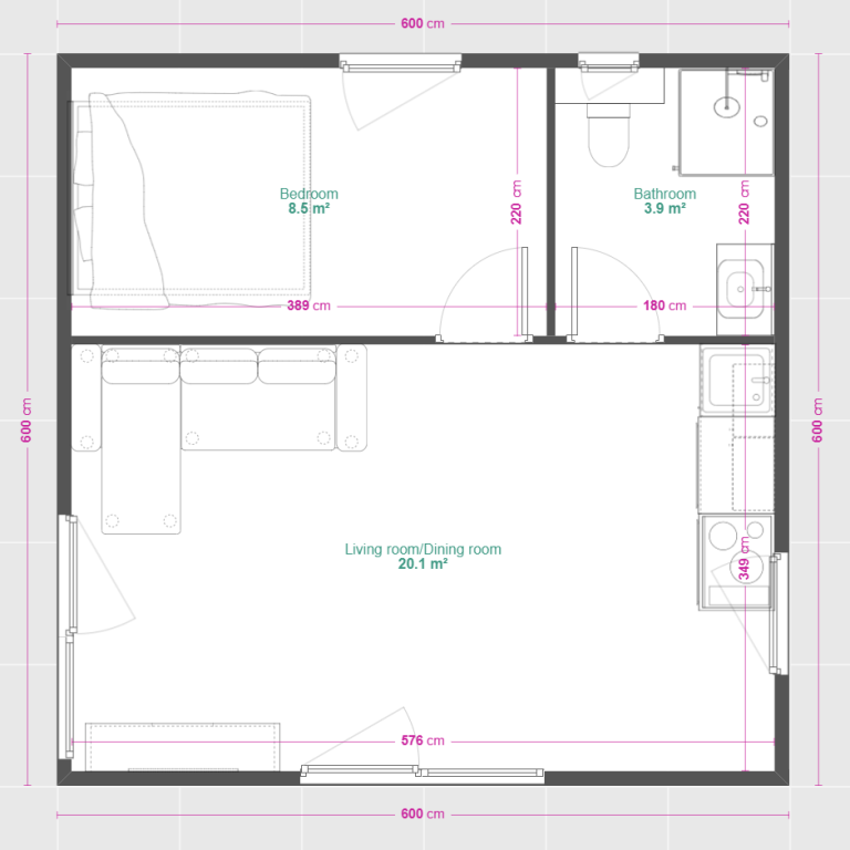
Technische Daten
- Außenmaße: 6,00 × 6,00 m
- Innenmaße: 5,80 × 5,80 m
- Firsthöhe: 2,70 – 2,80 m
- Innenhöhe: 2,30 – 2,40 m
- Trennwand: 3 m. inkl. Innentür 80x200 cm
Hinweis: Die Lieferung ist im Preis nicht inbegriffen. Je nach Bundesland liegen die Lieferkosten inklusive Kranentladung zwischen 2200 und 3500€ zzgl. MwSt.
Konstruktion & Isolierung
- Wandaufbau: Innen- und Außenverkleidung mit 100 mm PIR-Dämmung, Hochwertige Fassadenverkleidung aus Trapezblech in Holzoptik, U-Wert: 0,21 W/m²K
- Dachaufbau: Flachdach mit 100 mm PIR-Dachdämmung, Dachblech inkl. Traufblechen in Anthrazit, U-Wert: 0,21 W/m²K
- Bodenaufbau: 100 mm Bodendämmung, OSB-Platte, PVC-Bodenbelag (Farbe frei wählbar), U-Wert: 0,21 W/m²K
Innenausstattung
- Badezimmer: Duschkabine 90 × 80 cm, WC, Waschbecken mit Unterschrank und LED-Spiegel, Elektrischer Heizkörper, 40-Liter-Boiler
- Küche (1,40 m lang): Unter- und Oberschränke, Spüle, 2-Platten-Kochfeld, Mini-Kühlschrank
- Elektroinstallation (im Preis enthalten): 8× Spotlampen, 6× Doppelsteckdosen + Steckdosen für Küchengeräte, 1× Verteilerkasten, 3× Lichtschalter
- Fenster & Türen: Hochwertige Aluminiumfenster und -türen, 2-fach verglast, Farbe: Anthrazit (RAL 7016), Hohe Stabilität und moderne Optik

