Wohnhaus Weide 10x4
61800€ zzgl. MwSt
Technische Daten
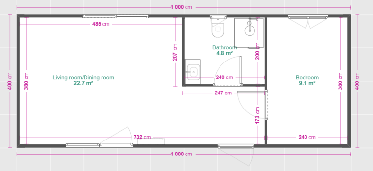
- Außenmaße: 10,00 × 4,00 m
- Innenmaße: 9,80 × 3,80 m
- Firsthöhe: 2,70 – 3,20 m (Satteldach)
- Innenhöhe: 2,30 – 2,80 m (Satteldach)
Hinweis: Die Lieferung ist im Preis nicht inbegriffen. Je nach Bundesland liegen die Lieferkosten inklusive Kranentladung zwischen 3800 und 7800€ zzgl. MwSt. (Schwertransport mit Pilot Begleitung)
Konstruktion & Isolierung
- Wandaufbau: Innen- und Außenverkleidung mit 100 mm PIR-Dämmung, Hochwertige Fassadenverkleidung aus Trapezblech in Holzoptik, U-Wert: 0,21 W/m²K
- Dachaufbau: Flachdach mit 100 mm PIR-Dachdämmung, Dachblech inkl. Traufblechen in Anthrazit, U-Wert: 0,21 W/m²K
- Bodenaufbau: 100 mm Bodendämmung, OSB-Platte, PVC-Bodenbelag (Farbe frei wählbar), U-Wert: 0,21 W/m²K
Innenausstattung
- Badezimmer – Premium-Version: Duschkabine 90 × 90 cm, Wandhängendes WC, Verkleidete Wände in verschiedenen Optiken (Holzoptik, Steinoptik), Großes Waschbecken mit Unterschrank und LED-Spiegel, Elektrischer Heizkörper, 60 Liter SLIM Boiler
- Küche (1,80 m lang): Unter- und Oberschränke, Spüle, Geschirrspüler, Elektrischer Ofen, 4-Platten-Kochfeld, Kühlschrank
- Elektroinstallation (im Preis enthalten): 10× Spotlampen, 8× Doppelsteckdosen + zusätzliche Steckdosen für Küchengeräte, 1× Verteilerkasten, 6× Lichtschalter
- Klimaanlage mit Heizfunktion (3,5 kW) – zum Kühlen und Heizen
- Fenster & Türen: Hochwertige Aluminiumfenster und -türen mit zusätzlicher Dämmung im Rahmen, 3-fach verglast, Farbe: Anthrazit (RAL 7016), Hohe Stabilität und moderne Optik

